房主自述:
婚后我们有一套房子,考虑到有孩子以后,现有的房子无法满足居住条件;加上父母的年纪大了,想把父母从老家接来合肥居住。于是我跟妻子决定,再买一套房。虽然有贷款压力,但是想到以后父母可以一起在合肥生活,并有属于自己新的“小窝”,还是对生活充满了向往。
房子买好,在选择装修上却有些力不从心,装修市场鱼龙混杂,在网上也看到很多网友诉说装修被坑的经过。因此感觉选择装修公司要比买房难得多!
初识竞艺,是朋友推荐的。那时朋友家刚装好,我和妻子去做客。室内装修简约时尚,不繁复,再加上朋友一直对施工过程称赞有加,我和妻子便心动了,问了朋友装修公司的电话,后面就直接联系了。
第一次到店,约的也是那位帮朋友新房做设计的设计师,初见面,他并没有像其他装饰公司设计师一样吹嘘公司,大谈价格优惠催交定金,而是深入浅出的给我们解释了很多装修知识、施工工艺等。经过几次到店的详谈,我和妻子不谋而合,定下了竞艺装饰。
▷房屋信息◁
小区名称:万达亲湖苑
户型面积:三室两厅一卫
项目面积:98㎡
设计风格:北欧风格
设计师:李鑫
Before
After
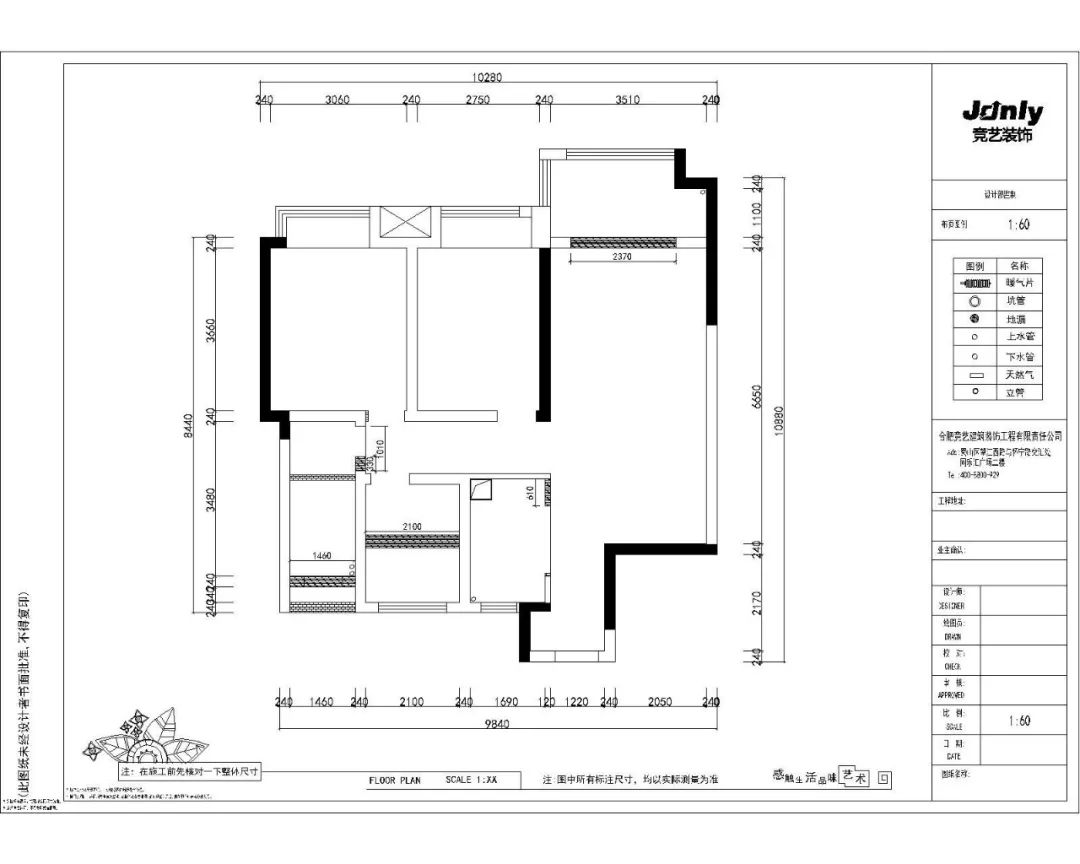
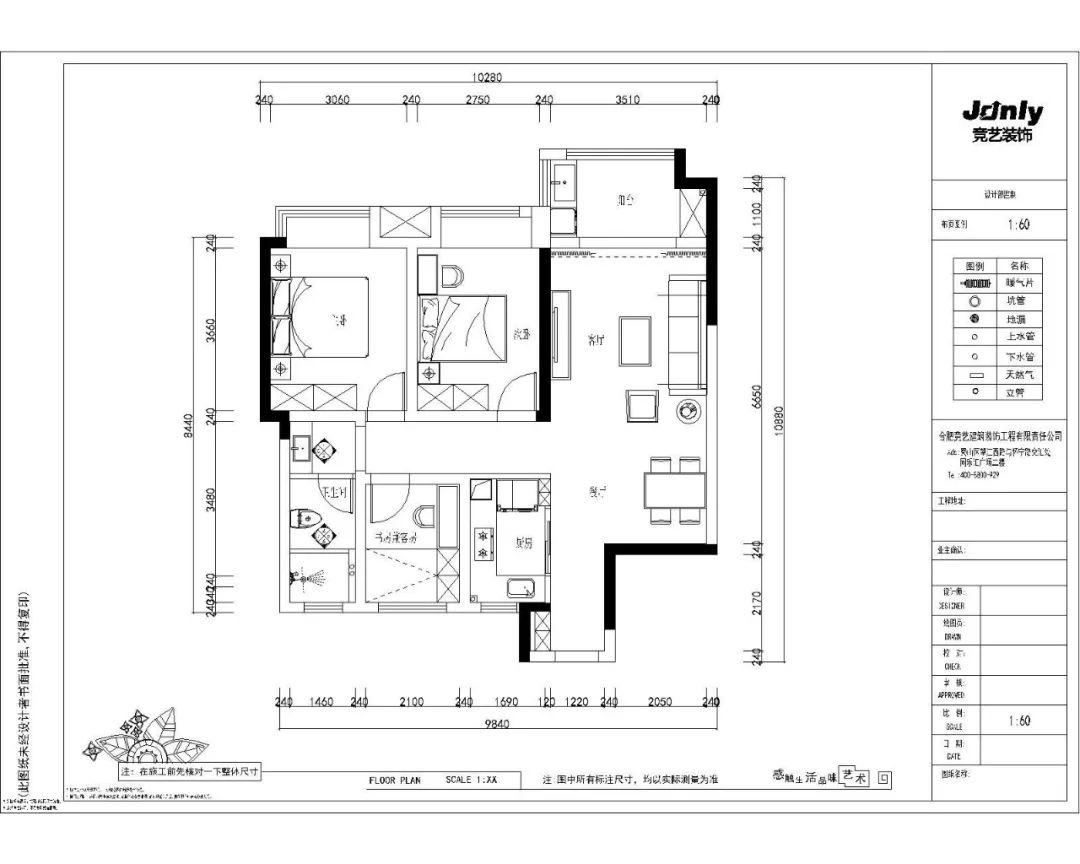
<户型介绍>
该房屋户型方正,也是当下比较经典的户型。
通过平面布置图可见,整体基本上没有太大改动,
唯一的改动是把卫生间外面的设备平台扩到室内使用,
并按照原本的户型合理布局,充分利用了房子每一个空间。
︗
客
厅
︘
木质地板、白色艺术背景墙,灰色沙发,地毯的主要色调以黄、灰、淡蓝为主,
木质茶几为客厅添加了几分古典气息。
带有艺术感的电视背景墙,在安装电视之前与之后的对比,墙壁显得现代充满层次感。
︗
卧
室
︘


卧室设计主张温馨,以柔软的灰色+浅蓝色为主,
摒弃过多的装饰,软化浮于表面的设计,用简练的线条,让空间显得内敛而精致。
次卧布局简约,床边放置一台精致美观的梳妆台。
对于小户型的家来说,书房总是承担了两种职能,一个是工作,一个是休憩。
工作之余,躺在榻榻米上休息一番也是别有一番温馨。
书房的地板没有用木质的,而是用特色的花纹地砖,很有设计感。
︗
餐
厅
︘
餐厅和客厅连为一体,吊顶的风格也与客厅一样呼应,简单却不乏设计感。
餐桌餐椅都用木材质,简约温馨舒适。
︗
厨
房
︘
木质橱柜、灰色的厨房墙砖,取消传统的白色墙砖,厨房显得更加干净整洁,
白色瓷砖容易显脏,而且不好清理。
进入厨房的是一道推拉门,地砖是灰色,与木质橱柜互相搭配,尽显北欧风格特色。
︗
卫
生
间
︘

洗手间的地面用灰色瓷砖,墙面上下采用颜色一深一浅不同颜色的墙砖,
洗手池下面设计一个柜子,方面储存洗漱用品。

与洗手间采用同样的设计风格,干湿分离的卫生间更加方便实用.
第一眼是不是感觉淋浴间储存空间有些不足呢?
原来储放洗浴用品在这里,设计师巧妙的利用了墙壁的空间,既美观还实用。
★设计师简介★
毕业院校:南京河海大学
从业年限:5年
擅长风格:北欧、现代、宜家、工业、美式、日式等
个人家装案例:
大溪地御倾城、禹州天境、万达亲湖苑、观澜印象、观澜公馆、信地华地城、名门绿洲等
中国室内装饰协会专业会员
生活其实很简单,择一座城,有拥一套属于自己的房子,不一定要多豪华,温馨、精致就好。夫妻相敬如宾,儿女膝下承欢,一家人幸福到老。